Palazzo
della Provincia

ANNO:

2011

LUOGO:

Bolzano

TIPOLOGIA:

Edificio direzionale

COMMITTENTE:

Provincia Bolzano

TEAM & PARTNERS:

593 Studio – Fram_menti – Omar Baldin – Fram_menti – Task Architekten

APPROFONDIMENTI

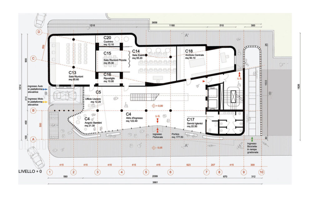
Il concorso per la nuova sede della Provincia di Bolzano ha coinvolto 593 Studio e Taks Architekten di Berlino in una ricerca multidisciplinare. Il progetto, ispirato alla geomorfologia della conca bolzanina, si sviluppa come un landmark verticale che riflette il territorio. Il concept energetico privilegia sostenibilità e contenimento dei consumi, integrando una gradonata verde ispirata ai fiumi Isarco e Adige. Materiali innovativi come il BlingCrete assicurano durabilità e resistenza, mantenendo l'estetica nel tempo.